Inhaltsverzeichnis
Motorradträger für Karmann
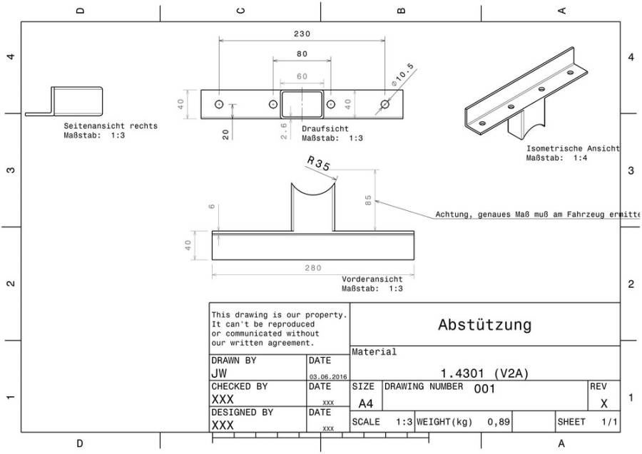
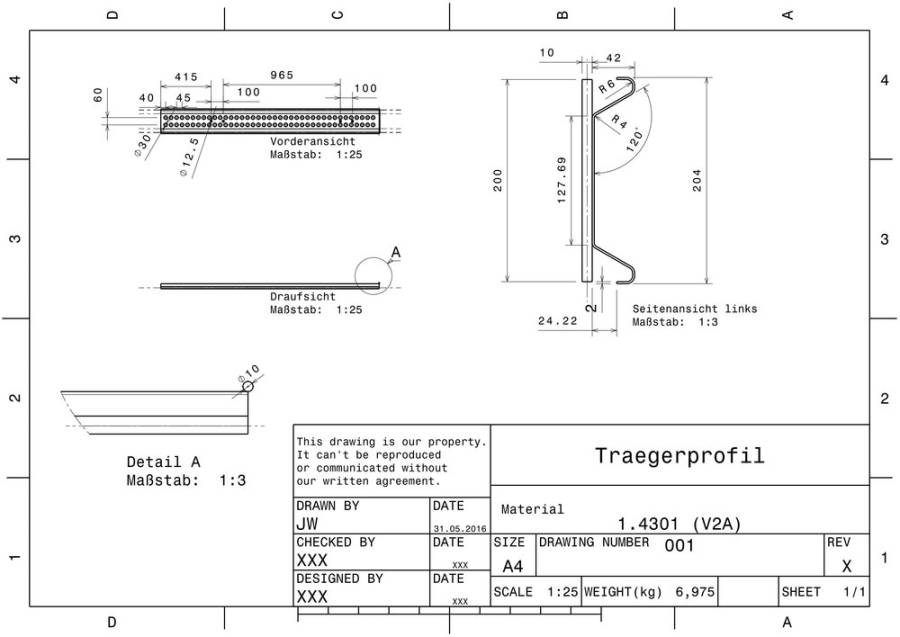
Ich habe einen selbstgebauten Motorradträger aus rostfreiem Edelstahl an meinem Karmann.
Ohne Probleme wurden mir bei meinem LT 140kg eingetragen, ich hätte auch mehr haben können.
Zuerst habe ich den LT 31 aber auf 3,400 kg auflasten lassen, um so 1950 kg Achslast hinten zu haben.
Das Schöne an meinem Selbstgebauten ist, ich habe ihn in Anlehnung des Original Karmann Trägers ziehmlich hoch angebracht, so das ich bei z.B bei der Auffahrt auf eine Fähre nie aufsitze (im Vergleich zu gekauften Trägern bei Fiat Ducato). Allerdings muss ich die Enduro auch etwas höher raufschieben.
Positiv ist auch, dass der Karmann sowieso hinten höher steht als vorne und bei geladener Enduro hinten dank kurzem Hecküberhang nicht runterhängt, wie Ducatos mit oft langen Hecküberhang. Beim Fahren merke ich die 125kg Enduro hinten drauf aber schon, weil der LT vorne leichter und Seitenwind empfindlicher wird
Die hier aufgezeigten CAD-Zeichnungen sind selbsterklärend, zumal sie durch die ausführliche Stückliste ergänzt wird.
Die Orginale sind als PDF-Datei "hier"; auf COPYRIGHT wird ausdrücklich hingewiesen! ; Danke an Hannes aus dem Westerwald(Johannes Wagner vom 01.05.2018 17:51), der uns diese Unterlagen(Copyright) zur Verfügung gestellt hat
Bedenken/ Einwände zu dieser Konstruktion
Geschrieben Als Antwort auf: Motorrad Träger geschrieben von Hannes aus dem Westerwald am 14. Juli 2021 20:17:02:
Hallo Hannes!
Der hat doch wohl nicht den Motorradträger mit den Stahlplatten stumpf auf das 2 oder 3mm Blech geschweißt wenn ich das im Zeitraffer richtig sehe? Wie dumm ist das denn?
Doch, hat er… Allerdings hat er die Rohre zusätzlich mit Laschen mit dem darüberliegenden Rahmen verschweißt, und das dürfte die Hauptlast tragen. Die Platten hätte er sich schenken können. Vielleicht hat er gemerkt, dass man die Rohre nicht nen Meter auskragen lassen kann und dann dort ein Moped draufwerfen, und hat die zusätzlichen Laschen gemacht. Nun sieht der darüberliegende Rahmen allerdings auch nicht besonders tragfähig aus…
Ich hoffe, das der Eigner den TÜV nicht besteht und die Kiste stillgelegt wird.
Ich hoffe, dass dem T4Oskar klargemacht wird, dass das so nicht geht. Er lässt sich dann sicher was einfallen. Ich finde es allerdings bemerkenswert, mit einer Lösung auf Youtube zu gehen, die noch garnicht begutachtet ist.
Das dünne Blech des Querträgers trägt nicht mal das Gewicht des Pocket-Bikes bei dem Hebelarm Das dünne Blech, wenn es bei dem alten Karren noch gesund ist wird sich verformen und die Schweißnähte ausreißen.
So wie das jetzt gemacht ist, hält das ja statisch schonmal, der Mensch hat sich ja zu seinem Moped dazugestellt und sogar (sehr vorsichtig!) etwas gewippt. Durch die Laschen wird die Biegung schon vor den angeschweißten Platten aus dem Träger genommen.
Aber dynamisch befürchte ich, dass durch die Fahrbahnstöße mit der Zeit Risse im überanspruchten Material entstehen. Wahrscheinlich in dem Rahmen direkt unter der Bodenplatte.
Bei dem Träger im WIKI wird die Biegung durch die zweifache Aufhängung, einmal am Heckquerträger, und einmal an der Abstützung an den Längsträgern, aufgenommen. Das sieht sehr solide aus (ohne da jetzt was gerechnet zu haben). (Auszugsweise aus Forumsbeitrag von Tiemo am 14. Juli 2021 22:18:12: , mit anschließenden interessanten Beiträgen bis 14.07.2021 23:13 (0) ).
Zu dem Teil ist alles gesagt.
Leider nicht „getestet“; VIBRATIONEN und zu schwachen Materialstärken sind meist der Tod solcher Konstruktionen und gefährlich.
Ich rate davon ab.














